+7 914 545 10 70

info@studiomay.ru

Дизайн и текстиль. Шоурум в Хабаровске


Яндекс.Метрика


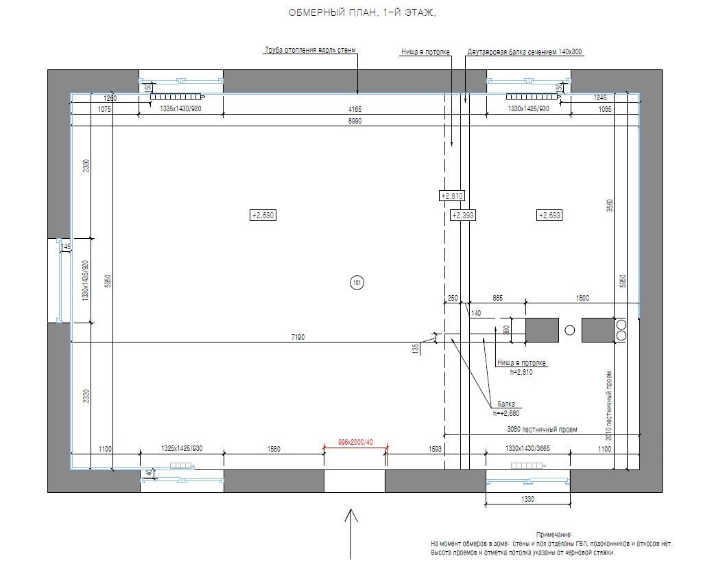
Планировочное решение 1-го этажа

Дизайн интерьера дома. Хабаровск, пер.Казачий

Интерьер дома площадью 100 м.кв.

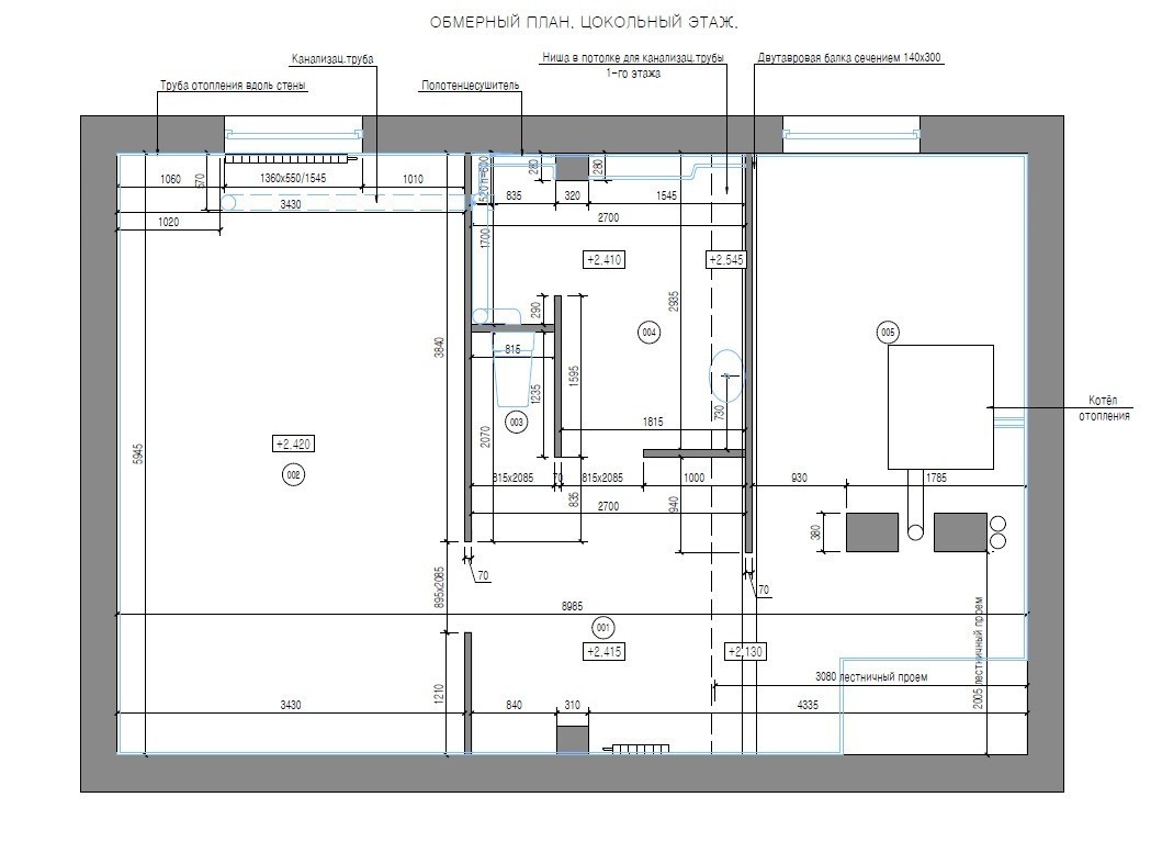
Исходный план дома - предельно прост. Дом расположен на склоне. Вход в дом на первый этаж. По лестнице спускаемся вниз в ванную, спальную комнаты и подсобные помещения.

Вверх по лестнице - мансардный этаж, пока проектом не прорабатывается.

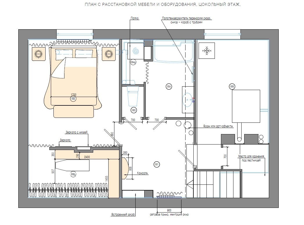
Планировочное решение цокольного этажа

Дизайн центральной зоны

Дизайн лестничного холла